摘要:在全球能源加速轉型、我國新能源轉向全面推廣的關鍵期,減少化石能源消耗首當其沖。目前國內油田在生產過程中化石能源消耗普遍占比較高,都在積極開展綠色低碳轉型發展。熔鹽儲能技術是利用熔鹽高熱容、高分解溫度、高流動性、低腐蝕性等特點,以其作為儲熱介質,將谷時電或綠電等以熱能的形式儲存起來,再利用儲存的熱能放熱進行工業生產的技術,該技術已廣泛應用于太陽能光熱發電、火力發電機組的調峰調頻、供暖與余熱回收利用等領域.目前對熔鹽儲熱技術的研究普遍以太陽能光熱發電為中心展開,探索熔鹽儲熱技術如何在油田生產系統中得到應用,分析熔鹽物性,研究其蓄熱溫度區間,適宜的加熱方式、關鍵設備部件及系統工藝流程等,實現以較為低廉的谷時電加熱熔鹽進行儲熱放熱循環,滿足油田生產加熱需求,提高油田綠電消納水平,減少化石能源消耗,對于“雙碳”目標實現意義重大。
在全球能源加速轉型、我國新能源轉向全面推廣的關鍵期,減少化石能源消耗首當其沖。習近平總書記在2020年9月22日聯合國大會上提出“力爭2030年碳達峰,2060年碳中和”的戰略目標,中國石油天然氣集團公司制定了“清潔替代、戰略接替、綠色轉型”的三步走戰略,明確“2025年碳達峰,2050年近零排放”的目標路徑。
遼河油田原油產量連續30年保持千萬噸規模,其中,稠油、超稠油產量約占60%,2021年生產系統消耗天然氣18.2億m3、電22.4億kW·h,折合269.59萬t標煤,CO2排放量567.54萬t,能耗主要為天然氣。隨著近年來光熱發電項目建設,熔鹽儲熱技術為油田“以電代氣”,綠色轉型提供了技術選擇,因此,在油氣生產高能耗系統應用熔鹽儲熱技術,不僅有利于油田清潔能源替代,減碳排綠色發展,同時為國家電網起到填谷作用,以接納更多的風電容量,降低電網棄風率。
1熔鹽簡介
熔鹽一般是指無機鹽或其混合物的熔融態液體。常見的熔鹽由堿金屬的硝酸鹽、氯化鹽、氟化鹽、碳酸鹽等組成,每種熔鹽的特性見表1。
由表1可見,硝酸鹽熔點低、腐蝕性低并已廣泛應用于太陽能發電及電加熱熔鹽儲能熱力站等領域。工程上常用的硝酸熔鹽分別為二元鹽(40%硝酸鉀(KNO3)、60%硝酸鈉(NaNO3))和三元鹽(53%硝酸鉀(KNO3)、40%亞硝酸鈉(NaNO2)、7%硝酸鈉(NaNO3)),特性參數見表2,二元鹽具有上限使用溫度高,接觸空氣不氧化,高溫下黏度接近于水,具有較好的流動性等特點,整個系統運行更加安全。
表1熔鹽種類介紹

表2硝酸鹽熔鹽特性參數

2熔鹽儲熱技術簡介
熔鹽儲熱技術于20世紀80年代就已經在光熱發電領域中應用,熔鹽作為儲熱工質,被聚焦光斑加熱后進入高溫罐儲存,可以解決光熱發電中的能源儲存難題,發電時作為傳熱工質與給水換熱產生過熱蒸汽,驅動汽輪機做功。表3為國內外光熱發電成功案例,表4為青海德令哈光熱發電具體參數。該技術在油田生產領域尚無應用,可以借鑒其儲熱放熱循環技術,開展相關技術研究與應用。
表3國內外光熱發電成功案例

表 4 青海德令哈熔鹽儲熱工況參數

3油田井場生產現狀
遼河井場加熱爐數量多且布置分散,主要用于采出液加熱升溫,加熱爐的平均負荷率多在60%~70%,一般從30℃左右升溫至60℃左右,井場加熱爐規格有32、90、170、290 kW等,實際常用的加熱負荷為30、60 kW。以遼河油田某采油井場生產實際為例,加熱液量為25 m3/d,含水率84%,加熱溫度為26~50℃,計算加熱負荷為26.85 kW。
4熔鹽儲熱技術在油田生產的探索
在現有熔鹽儲熱技術基礎上,創新熔鹽—熱風換熱技術路線,利用谷時電(22∶00—5∶00)或結合光伏發電系統白天時段進行補電,通過設置在熔鹽儲罐的電加熱器,將熔鹽由260℃加熱至340℃,電能轉化為熱能儲存在熔鹽中;全天連續釋放高溫熔鹽中的熱能,通過鼓風機將空氣與高溫熔鹽換熱成熱風(220/170℃),熱風再與采出液進行換熱,將采出液提溫后外輸。詳細設計如下:
1)設計參數及熔鹽基礎數據
(1)熔鹽儲熱橇設計加熱/儲熱功率:30/120 kW;
(2)熔鹽設計溫度:260~340℃(二元熔鹽);
(3)熔鹽密度:1924~1873 kg/m3;
(4)熔鹽熱容:1488~1502 J/(kg·K);
(5)熔鹽儲罐:20 m3。
2)主要設備設計
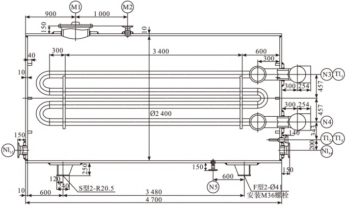
(1)熔鹽儲罐。設備為臥式結構,鞍座支撐型式,鞍座采用120°包角,設有電加熱器供熔鹽蓄熱使用,設備內部設有加熱盤管供熔鹽給空氣加熱(見圖1)。

圖1熔鹽儲罐設計圖
(2)設備主要參數:
直徑:2 400 mm;
筒體長度:4700 mm;
設計壓力:管程:0.77 kPa/殼程:常壓;
工作溫度:管程:170~220℃/殼程:260~340℃;
工作介質:管程:空氣/殼程:熔鹽;
主要材質:管程:20鋼管/殼程:Q345R鋼板;
殼體厚度:10 mm;
設備總重:8.05 t;
管道換熱參數:換熱面積:80㎡。
3)熔鹽-熱風換熱器
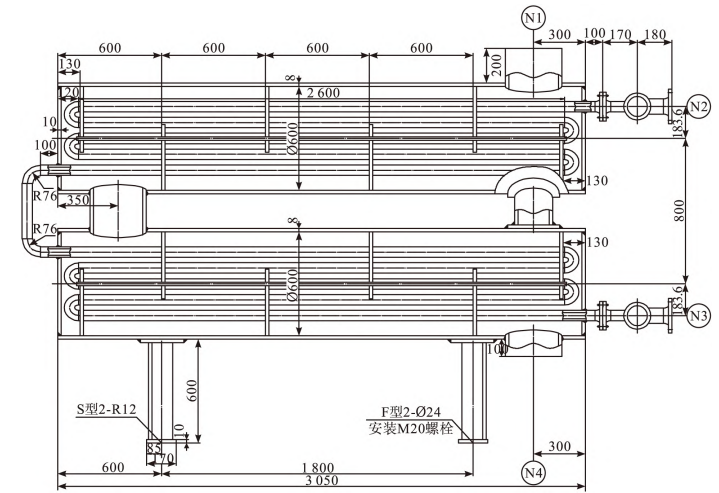
設備為臥式結構,鞍座支撐型式,鞍座采用120°包角,本設備設置上下兩個筒體,通過換熱盤管連接為一體,含水油在管程輸送,殼程內為熱空氣給盤管內含水油加熱(見圖2)。

圖2熔鹽-熱風換熱器設計圖
設備主要參數:
直徑:600 mm;
筒體長度:3050 mm;
設計壓力:管程:1.0 MPa/殼程:常壓;
工作溫度:管程35~50℃/殼程:170~220℃;
工作介質:管程:含水油/殼程:空氣;
主要材質:管程:20鋼管/殼程:Q345R鋼板;
殼體厚度:8 mm;
設備總重:2 t;
管道換熱參數:換熱面積:20㎡。
5熔鹽儲熱技術在油田生產的應用效果及意義
通過理論分析計算,遼河油田建設一臺試驗裝置,并于2023年1月投產運行,目前運行平穩。該裝置每天利用7小時谷時電(840 kW·h)加熱熔鹽儲存熱量(2 963 MJ),通過熱風循環換熱系統全天連續加熱采出液,采出液溫度由26℃加熱至50℃后(全天熱量2758 MJ),外輸至集油平臺,綜合熱效率為91.2%,達到節省天然氣2.7萬方/年,減排二氧化碳58.4 t/年的運行效果。
該裝置的投產,填補了熔鹽儲熱技術在油田生產的技術空白,可以幫助技術人員建立對熔鹽特性的認識,分析系統中熔鹽各部分的換熱效率,掌握熔鹽系統運行與維護安全措施,分析對比熔鹽儲熱與其他儲熱方式的不同,探索建造、運行、安全、環保、碳交易、電價機制等一系列生產運營經驗,為熔鹽儲熱技術逐步擴大建設規模,應用于采油站、聯合站及注汽系統加熱積累經驗,實現油田生產的綠色低碳轉型發展,助力雙碳目標實現。
本文作者:中油遼河工程有限公司,劉兵。
