“光伏+光熱”電站儲能模塊熱鹽泵設計
摘要
高溫熱鹽泵是一種用于處理高溫熔鹽溶液的泵,廣泛應用于化學、石油和電力等能源行業。本文根據給定的設計參數完成了“光伏+光熱”電站儲能模塊熱鹽泵水力及結構設計及CFD分析,包括熔鹽泵的工作原理、熔鹽泵的選型設計、材料選擇,水力模型的構建和仿真,木模圖的抽取繪制以及泵的結構設計等內容。在熔鹽泵的選型設計方面,根據設計任務要求,計算出泵的主要參數,同時選擇了可顯著提高泵的抗腐蝕性的設計材料。在CFturbo設計軟件上完成水力模型的設計。然后使用仿真軟件進行模擬計算。根據計算結果分析了泵的流量、揚程、效率等參數,說明了這些參數對泵的性能影響,并提出了相應的優化方案。在熔鹽泵的結構設計方面,本文設計了一種雙接管的高溫熔鹽泵結構,通過優化泵頭、泵軸和密封結構等關鍵部件的設計,提高了泵的密封性和穩定性。關于零部件的設計,主要以泵軸和密封為例,介紹了它們的設計原則和關鍵技術要點。
關鍵詞:高溫熔鹽泵,仿真,結構設計
1
背景介紹
水泵屬于水力工作機,即消耗能量的機械。其作用是把原動機的機械能或外部能量轉換為液體介質的機械能。泵的種類很多,應用非常廣泛,在國民經濟的各個領域都有廣泛應用,是發展現代化農業、現代化工業、現代化國防必不可少的機器設備。熔鹽儲能作為單獨的儲能單元模塊,可以很好匹配火電靈活改造、工業蒸汽生產需求。目前熱鹽泵儲能技術已經廣泛應用于太陽能光熱發電系統等新能源系統,利用了硝酸鹽儲能特性將太陽光熱能轉換為熔鹽的內能來存儲和發出能量,可以實現能量在系統之間的轉移,滿足可再生能源的電網調峰需求。除了光熱領域外,熱鹽儲能在熔鹽儲能供暖、供蒸汽以及火電機組的靈活改造領域也有很大的競爭優勢。

圖1.1熔鹽泵儲能單元
熔鹽儲能分為蓄熱與放熱兩個工作過程。蓄熱過程采用智能互補系統將風電、光伏、夜間低谷電、工業廢熱作為加熱熔鹽的能源,通過加熱熔鹽存儲可再生能源或低谷電能。放熱過程在換熱系統中高溫熔鹽與水換熱,產生水蒸汽,驅動渦輪機工作,對外發電。熔鹽儲能系統常與光伏、風電、核能等系統相耦合。加熱后產生的蒸汽與用戶側循環水回水進行換熱,換熱后產生的凝結水經過處理后可回到熔鹽放熱循環中繼續循環使用,換熱后的循環水供水供熱用戶使用,經熱用戶使用后的循環水回水,再與蒸汽進行換熱,完成蒸汽/水換熱循環。
雙罐系統適用于大面積供暖、工業蒸汽、發電、電廠的調峰、清潔電能的消納等域。

圖1.2雙罐系統
2
泵的選型設計
本次設計所提供的參數要求為揚程H=78.6m,流量Q=1285.58m3/h,目標效率η=72.0%。根據高溫泵的設計要求,熱鹽泵的轉速不會太高,因此泵轉速確定為n=1480r/min。為達到較高的水力效率,本文設計的熱鹽泵的泵軸與葉輪相連接,泵的進出口直徑,可以由合理的進口流速以及轉速確定。
由于本次設計的熱鹽泵是多級泵,選擇分級數時,每次分級的效率都需要單獨計算。不同級數泵之間的轉速,流量是不變的,因此每次計算只需改變揚程,計算出各自的比轉速以及總效率。分析計算得出的各級比轉速,對比總效率的變化幅度,選擇提高級數后效率不再明顯上升的級數作為本次設計泵的級數。根據計算結果,本次設計選擇二級泵。各級比轉速及總效率如下表2.1所示:

表2.1各級比轉速
計算泵的軸功率和原動機功率,據此選擇合適的電機。最后計算軸徑和輪轂直徑。泵軸的直徑應按其可承受的外載荷和剛度及臨界轉速條件確定,查閱資料可以確定本次設計所需材料的許用應力。因為扭矩是泵軸最主要的載荷,所以在開始設計時,可按扭矩確定泵軸的最小直徑。本次設計采用347H奧氏體不銹鋼,查閱資料可知該不銹鋼在560℃高溫下許用應力。同時應根據所設計泵的具體情況,考慮影響剛度和臨界轉速的大概因素,可對初算的軸徑作適當的修改,并圓整到標準直徑。待泵轉子設計完成后,再對軸的強度、剛度和臨界轉速進行詳細的校核。
3
水力模型設計優化
葉輪導葉是泵的主要過流部件,是影響工作效率的主要因素,主要作用是把原動機的機械能轉化為液體的勢能與動能。從工藝角度分析,離心泵葉輪屬于旋轉圓盤類零件,葉輪的水力設計在泵的經濟性、節能性等方面都有極大的應用價值。導葉的水力設計是建立在葉輪設計之后,導葉的作用是收集葉輪出口處的液體并輸送至下一級葉輪吸入口或出口,減小液體的流動速度,其中液體的壓力能是由它所具有的動能轉換成的,消除液體的旋轉運動,保證液體軸對稱流出葉輪,從而減少水力損失。在本次設計中,采用空間導葉。
本次設計利用泵與旋轉機械專業設計工具CFturbo軟件對泵的兩級葉輪進行設計。CFturbo專業的葉輪及蝸殼設計軟件,其參數化的設計使得軟件的通用性更強,完備的接口可以保證模型向多種CAD/CFD/CAE軟件工具輸出。通過CFturbo與其他建模和仿真工具結合,可以快速實現從設計到仿真,從優化到生產制造的整個過程的一體化,從而為泵等旋轉機械的設計單位提供一體化的解決方案。打開CFturbo軟件輸入此次設計需要的參數:流量:Q=1285.58m3/h、揚程:H=39.3m、轉速:n=1480 r/min。然后進行葉輪的水力設計。
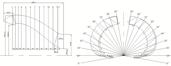
添加葉輪。本次設計的泵比轉速較小,流量大,揚程較高,軸面流道窄而長因此設計時選擇Radial/Mixed-flow Impeller,即離心/混流葉輪。輸入葉輪進口直徑Ds=280mm、葉輪出口直徑D2=380mm和葉輪出口寬度b2=60mm。設計軸面投影圖。調整前后蓋板型線為光滑的曲線,使葉片進出口之間的面積均勻變化,將進口邊改為流暢的曲線,由于熔鹽泵的設計要求,需要將葉片出口設計為傾斜20°的斜線,通過調節前后蓋板型線使橫截面積呈均勻增大變化,即F-L曲線變成一條斜向上的盡量光滑的曲線,使流道為擴張型流道,確保泵的運行使流體減速增壓初步完成設計的導葉和葉輪的軸面投影圖如圖3.1和圖3.2所示。

圖3.1葉輪初始軸面投影圖

圖3.2導葉軸面投影圖
輸入泵的主要參數后,依次設置葉輪和導葉的葉片屬性,葉輪葉片數為6,導葉葉片數為8。調整葉片型線,進行葉片加厚,對葉片進行修圓等操作,完成水力模型的設計。

圖3.3熔鹽泵水力模型
從CFturbo中將已經構建好了的葉輪,導葉模型導出,并設置繪制網格的參數。在Ansys TurboGrid中打開葉輪葉片模型,設置網格數量,葉輪的網格數設置為500000,導葉的網格數目設置為400000。完成葉輪和導葉的網格模型。然后將網格模型導入流場計算的前處理文件中,完成仿真參數設置后開始模擬計算。根據計算的結果修改本次設計的水力模型,設計方案的仿真計算結果應達到設計要求的揚程和效率,設計方案的葉輪和導葉的沖角應達到趨近于零沖角的范圍,同時在葉輪和導葉的流道中應盡可能的避免脫流及漩渦的產生,并使葉片受力均勻。

圖3.4前蓋板葉輪流場

圖3.5前蓋板導葉流場

圖3.6后蓋板葉輪流場

圖3.7后蓋板導葉流場
4
木模圖及結構設計
將優化完成的水力模型從CFturbo中以IGES的形式導出,然后在UG建模軟件中打開此文件,在UG繪圖軟件中抽取出葉輪及導葉的木模圖。導葉軸面投影圖上,在葉片進口邊與前蓋板的交點處畫一條平行于x軸的直線。并將這條直線作為移動對象,沿z軸等距復制11條直線,使這一共12條直線將從葉片進口邊與前蓋板的交點到出口邊與后蓋板的交點的距離等距分割,并將這些直線分別編號0到11。把這12條直線旋轉一定度數,使每個切面都把導葉葉片實體完全切割。然后繪制出每一個切面與葉片工作面、背面的相交曲線。將這些相交曲線和軸面投影圖都投影到同一平面上,然后保存為dwg格式文件。繪制完成的葉輪及導葉木模圖如圖4.1,4.2所示。

圖4.1葉輪木模圖

圖4.1葉輪木模圖
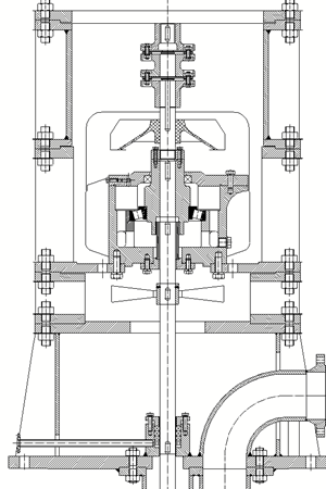
設計泵的總體結構,在CAXA制圖軟件中完成總裝圖的繪制。本次設計的是液下泵,為了便于機組的拆裝、檢修,確定泵為立式放置;從下往上裝,軸徑從上到下變細。從下到上分別是泵頭部分,連接管道和軸承箱。整軸長度18m,最大液下深度15m。
泵頭部分最下方是過濾網,可以過濾流體中的雜物,防止介質中存在雜質對泵的過流效率的影響甚至堵塞過流通道。軸上安裝有襯套,通過螺釘固定連接,起到了密封,磨損保護等作用,同時襯套中間開有縫隙,便于零件之間的配合,因此襯套安裝方式較為簡單,當泵工作一定時間,襯套磨損嚴重時,可以通過直接更換襯套來對泵進行維修。由于襯套是固定件,不能直接與主軸相連,因此軸與襯套需要通過軸套相隔開,軸套上還安裝了緊定螺釘,防止軸套滑移。而軸套需要跟隨主軸旋轉,所以襯套與軸套之間也開有縫隙,作為旋轉件和非旋轉件之間的間隔,防止襯套產生過多磨損,也減少了泵的效率損耗。如圖4.3為泵頭部分結構圖。

圖4.3泵頭
設計連接管道部分每個法蘭之間的間距為2000mm,共六個連接件,通過螺栓連接在一起。法蘭旁邊加裝了支撐板,用以加強管道的結構強度。同時本次設計的連接管道采用雙管的形式,這種設計在輸送熔鹽介質時,擁有比單管更好的性能。同時可以使泵在較短的時間內完成更多的工作,提高泵的效率和性能,并加強泵的耐久性和可靠性。接管中的軸套作用是平衡軸承帶來的軸向力,防止滑動軸承向下滑移,提高泵接管的穩定性。滑動軸承對主軸起支撐作用,減小泵工作時產生的傳動阻力,防止磨損過多。如圖4.4為連接管道的結構圖。

圖4.4連接管道
最后是軸承箱部分,軸承箱下方與接管相連,上方安裝電機,根據計算得出的功率,本次設計選擇的電機為Y系列355型號的立式電機。軸承箱通過底板與過流管道連接在一起,底板作為承重件,需要承擔整個軸承箱箱以及電機的重量,因此設計得較厚。填料密封通過壓蓋和螺栓帶來的軸向預緊力的作用使填料產生軸向壓縮變形,同時引起填料產生膨脹的趨勢,而填料的膨脹又受到軸表面的阻礙作用,使其與兩表面之間產生緊貼,間隙被填塞而達到密封的作用。填料密封的一端安裝有通氣孔,用來通入惰性氣體,可以減少主軸以及其他精密部件的氧化,提高泵的使用壽命。本次設計使用的是圓錐滾子軸承,可以平衡泵運行時產生的徑向力和軸向力。泵工作時軸承和主軸由于高速旋轉,會產生大量熱量,使軸承箱內溫度升高,因此需要在軸承箱內兩端分別安裝下風葉和上風葉用來散熱,防止溫度過高影響泵的運行效率。軸承箱上端是簧片聯軸器,由簧片和簧片套組成,其作用是連接軸承箱和電機連接起來,起到傳遞扭矩的作用。軸承箱結構如圖4.5所示。

圖4.5軸承箱
5
結論
本文根據設計任務書的要求計算出所需要的功率,軸徑等數據,完成選型設計。然后在CFturbo水力設計軟件中輸入泵的基本參數,分別設置葉輪和導葉的軸面投影圖,葉片型線和葉片加厚,完成泵的水力模型設計。將葉輪和導葉模型導出后進行網格劃分,然后在CFX仿真軟件里分別完成泵在1.1,1.0和0.9倍流量工況下的仿真計算。對計算得出的數據和流場進行分析并提出優化方案,修改水力模型,直到水力模型仿真結果中的揚程和效率滿足設計要求,流場優秀。然后在3D軟件里抽取出葉輪和導葉對應的木模圖,最后在CAXA制圖軟件里完成泵的總裝圖繪制。
(作者:夏洪 指導老師:金永鑫)
